本文
群馬県庁県民広場・県民ホール等 お貸しします!
1 趣旨・目的
県では、にぎわい創出を目的として群馬県庁県民広場、群馬県庁1階県民ホール及び県民駐車場屋上庭園について、民間事業者等が開催するイベント用スペースとして貸出します。
2 制度概要
利用希望者の申請に基づいて、県において行政財産の目的外使用許可を行います。
これに伴い、利用者の方には利用する場所の面積に応じた会場使用料と、電気を使用した場合には使用量に応じた実費相当額をご負担いただきます。
群馬県庁は行政庁舎であるため、行政目的での利用が優先されること、及び県において申請内容が趣旨・目的に合致しているか等を審査の上、使用許可を行うことを予めご承知おきください。
また、庁舎管理上、各対象施設の使用(使用方法)を制限する場合がありますので、「よくある質問」をあわせてご確認の上、利用をご検討ください。
3 対象施設(群馬県前橋市大手町一丁目1番1号)
群馬県庁 県民広場(全面)


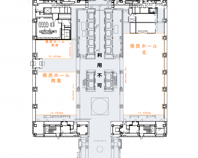
群馬県庁1階県民ホール(北/南)


県民駐車場屋上庭園(全面)


4 貸出し期間
2026年2月16日~2027年3月31日
5 費用負担
群馬県庁県民広場
会場使用料
- 全面(3,606.53平方メートル) 22,823円 (税込)
附属設備
- 電気:イベント用分電盤等をお貸しできます。ただし、イベント実施にかかった電気使用量を算定し、後日実費相当額を負担いただきます。
- 水道、公衆無線LAN:無料でご利用いただけます。
- 群馬県庁県民広場西側(昭和庁舎との間)の石畳部分:無料でご利用いただけます。
※群馬県庁県民広場の利用を伴わない附属設備のみの利用はできません。
群馬県庁1階県民ホール
会場使用料
- 北(437平方メートル) 24,189円 (税込)
- 南(250平方メートル) 13,838円 (税込)
附属設備
- 電気:イベント用分電盤をお貸しできます。ただし、イベント実施にかかった電気使用量を算定し、後日実費相当額を負担いただきます。
- 照明、空調、公衆無線LAN:無料でご利用いただけます。
※群馬県庁1階県民ホールの利用を伴わない附属設備のみの利用はできません。
県民駐車場屋上庭園
会場使用料
- 全面(754平方メートル) 33,476円 (税込)
附属設備
- 電気:イベント用分電盤等をお貸しできます。ただし、イベント実施にかかった電気使用量を算定し、後日実費相当額を負担いただきます。
6 利用条件
利用希望者は、以下を踏まえた申請内容としてください。
県において内容を審査の上、使用許可の決定をします。
申請内容の条件
申請内容は、以下のすべてに該当するものとします。
(ア)確実に実施できる内容であること
(イ)にぎわい創出に繋がる内容であること
※多数の出店者を集めたり、来場者を楽しませる企画を行うなど、にぎわい創出に繋がる工夫があれば、販売や参加料を徴収するイベントも可能です。
(ウ)県との事前協議に応じられるものであること
対象外となるもの
(ア)政治的又は宗教的活動
(イ)青少年等に有害な影響を与える物販、サービス提供活動等
(ウ)騒音や異臭など、著しく周辺環境を損なうことが予想される活動
(エ)暴力団員による不当な行為の防止等に関する法律(平成3年法律第77号)第2条第5号に規定する指定暴力団等の活動
(オ)公序良俗に反し、又は反社会的な活動
(カ)庁舎管理上、許容できないリスクを伴う活動
(キ)その他、県がにぎわい創出に繋がる可能性が低いと判断する活動
7 利用希望者
利用希望者の条件
利用希望者は、申請内容を実行する意思と能力(資格)を有する民間企業、NPO法人等の法人、個人事業主又は任意団体等とします。
利用希望者の除外要件
次のいずれかに該当する利用希望者は申請することができません。
(ア)地方自治法施行令(昭和22年政令第16号)第167条の4の規定に該当する者
(イ)申請時点で、群馬県の入札参加の制限を受けている者
(ウ)会社更生法(平成14年法律第154号)及び民事再生法(平成11年法律第225号)に基づく更生・再生手続き中の者
(エ)暴力団員による不当な行為の防止等に関する法律(平成3年法律第77号)第2条第2号に規定する暴力団又は群馬県暴力団排除条例(平成22年群馬県条例第51条)の関連規定に該当する者
(オ)国税、都道府県税、市町村税を滞納している者
8 貸出しまでの流れ
(1)空き状況の確認
以下のとおり、メールでお問い合わせください。
- 件名:【日程調整】県民広場・県民ホールの利用
- 内容:利用希望者の概要、どんな内容で使用したいか、希望日、連絡先
- 宛先:群馬県財産有効活用課県庁舎リノベーション推進室あて
zaisanka(アットマーク)pref.gunma.lg.jp
※「(アットマーク)」を@に置き換えて送信してください。
(2)日程の仮押さえ
いただいたメールの内容を踏まえ、県において日程の仮押さえをします。
日程を仮押さえした場合は、いただいたメールに返信してお知らせします。
(3)打合せ
Webまたは面談にて、申請内容等の詳細を教えてください。
県との協議の中で、申請内容の調整をしていただく場合もあります。
(4)申請 ※イベント実施の2週間前まで
打合せ内容を踏まえて別途お渡しする申請書等の必要書類を提出していただきます。
(5)承認
申請書等の内容を改めて審査の上、県で使用許可の判断をします。使用許可できる場合、承認書をお送りします。
(6)会場使用料の支払い ※イベント実施の前日まで
会場使用料の納入通知書(請求書)を郵送しますので、届き次第、速やかにお支払いください。
お支払いを確認できない場合、使用することはできません。
(7)イベント実施、原状復帰
イベント等を実施してください。
イベント等の実施後には、必ず原状復帰をしてください。
(8)結果報告、使用した電気代の支払い
イベント等の実施後に、メールでアンケートフォームをお送りしますので結果報告をしてください。
また、電気を使用した場合は、電気使用量に応じて請求書(納入通知書)を郵送しますので、届き次第、速やかにお支払いください。
9 キャンセル及び使用料の払い戻しについて
県が承認した後のキャンセル及び使用料の払い戻しは受け付けませんので、よくご検討の上、お申し込みください。
ただし、利用予定日時に前橋市において気象等の特別警報・警報・注意報※が発表された場合など、県がやむを得ない事由があると判断した場合は後日、使用料の払い戻しをします。
※気象庁ホームページ<外部リンク>
10 その他留意事項
責任及びリスク分担の考え方
実施するイベント等については、利用希望者が責任を持って遂行してください。
イベントに伴い発生するリスクについては、原則として利用希望者が負うものとします。
イベント保険等への加入のお願い
万が一の場合に備え、イベント実施に当たっては保険等への加入をお願いします。
利用を中止する場合
実際の利用が事前の申請内容に反する等、県から警告等が発せられても改善が見られない場合は、利用を中止することがあります。
法令等の遵守
利用にあたっては、事前に利用希望者の責任において関係法令等を確認し、イベント等の実施時における法令不適合のリスクは利用希望者に帰属することとします。
11 事務局
群馬県 総務部 財産有効活用課 県庁舎リノベーション推進室
E-mail:zaisanka(アットマーク)pref.gunma.lg.jp
※「(アットマーク)」を@に置き換えて送信してください。








